Farmborough Community Shop

Supporting our village and local community

  • Home
  • News
  • Volunteer
  • Support YOUR Shop
    • Membership
    • Easyfundraising
  • Photo gallery
  • About us
    • Funding
    • FAQs
  • Contact us

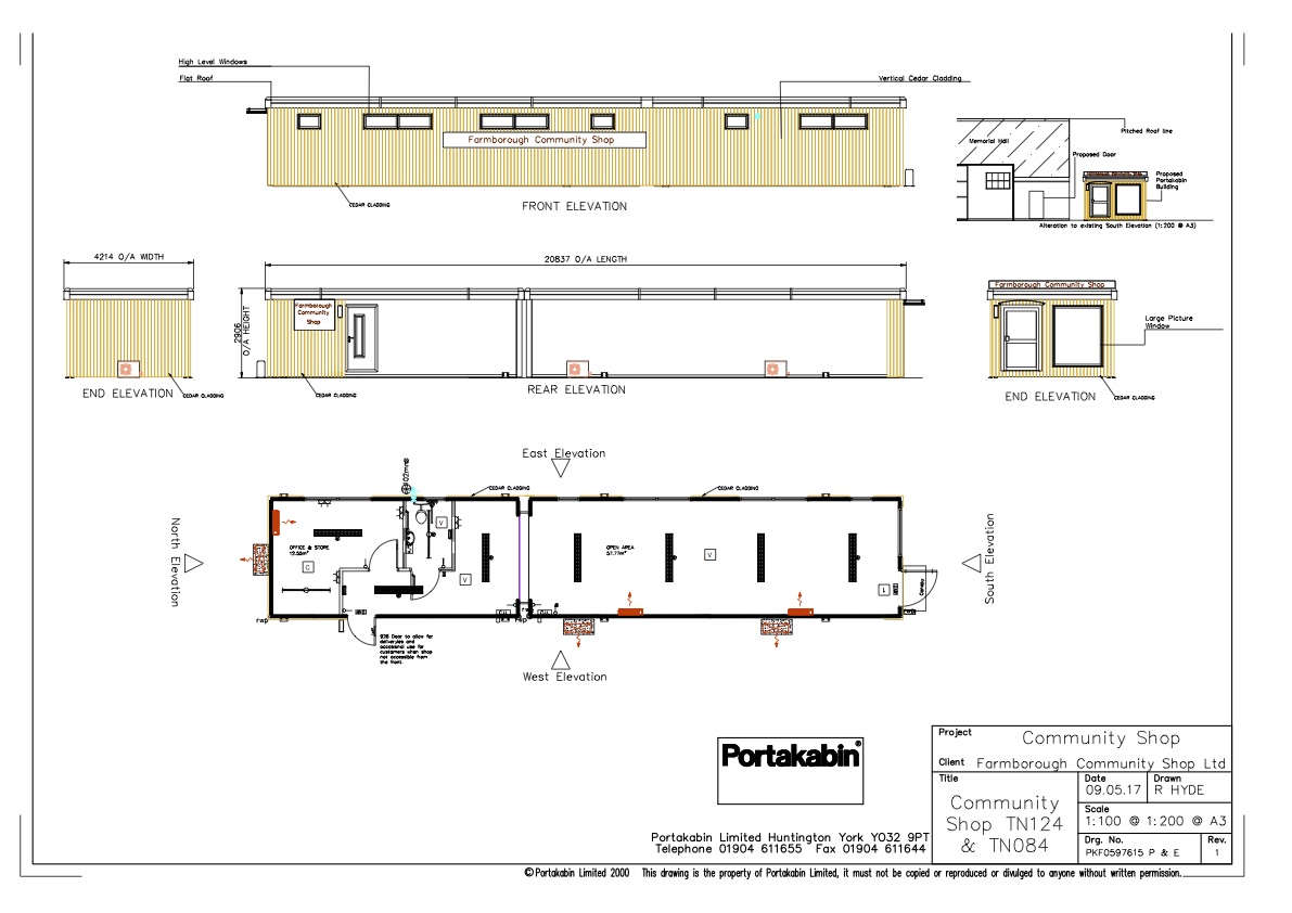
Revised Drawing-1187532

20 May 2017 by Farmborough Community Shop

How to find us

We are located on Little Lane, Farmborough, BA2 0AH, behind Farmborough Memorial Hall.

To access the shop, arrive at Farmborough Memorial Hall car park, walk through the gate to the right of the hall, across the patio and you will find us in the timber-clad building to the rear of the hall.

Sign up to
our newsletter >>

© Copyright 2018 Farmborough Community Shop Ltd · All Rights Reserved · Created by Picablue